Poznaj naszą ofertę
Jeśli szukasz idealnego miejsca na swoją firmę lub biuro, to dobrze trafiłeś!
Rzuty siedziby głównej
Rzuty Magazynu
Orde Property
Parter
Na parterze budynku znajduje się duże pomieszczenie (184,5 m2), króte może być wykorzystywane jako pokazowe (sala sprzedażowa), wystawowe oraz miejsca na spotkania firmowe lub eventy. Dodatkowo można je wykorzystać w konwencji open space dla biura. Na parterze znajduje się również toaleta oraz pomieszczenie techniczne
Orde Property
Parter
Na parterze budynku znajduje się duże pomieszczenie (184,5 m2), króte może być wykorzystywane jako pokazowe (sala sprzedażowa), wystawowe oraz miejsca na spotkania firmowe lub eventy. Dodatkowo można je wykorzystać w konwencji open space dla biura. Na parterze znajduje się również toaleta oraz pomieszczenie techniczne
Orde Property
Piętro 1
W jego skład wchodzą pomieszczenia biurowe, sala konferencyjna, recepcja, 2 toalety oraz kuchnia
Orde Property
Piętro 1
W jego skład wchodzą pomieszczenia biurowe, sala konferencyjna, recepcja, 2 toalety oraz kuchnia
Orde Property
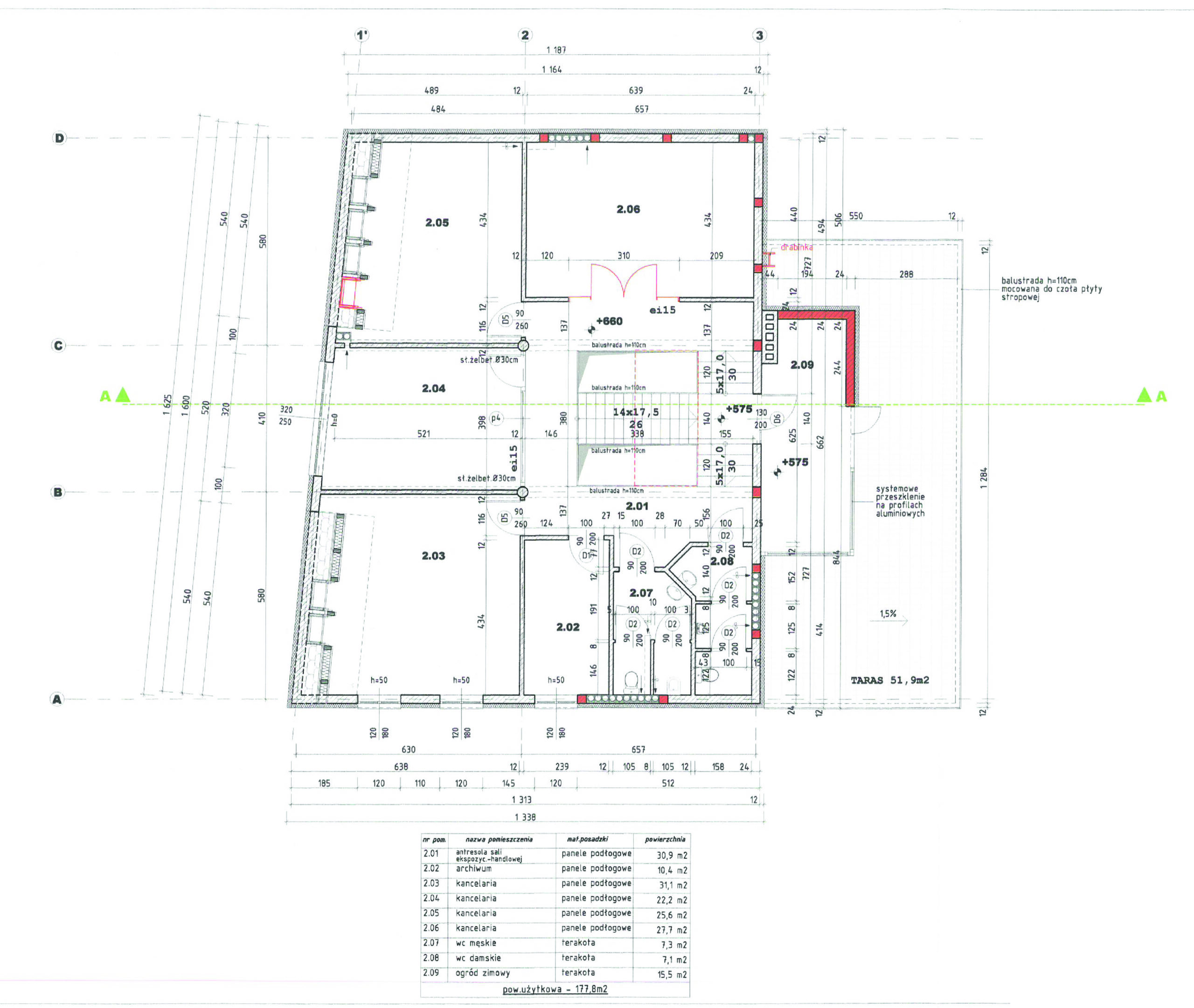
Piętro 2
W skład 2go piętra wchodzą pomieszczenia biurowe, 2 toalety oraz loggia z wyjściem na taras
Orde Property
Rzut boczny
W skład 2go piętra wchodzą pomieszczenia biurowe, 2 toalety oraz loggia z wyjściem na taras
Orde Property
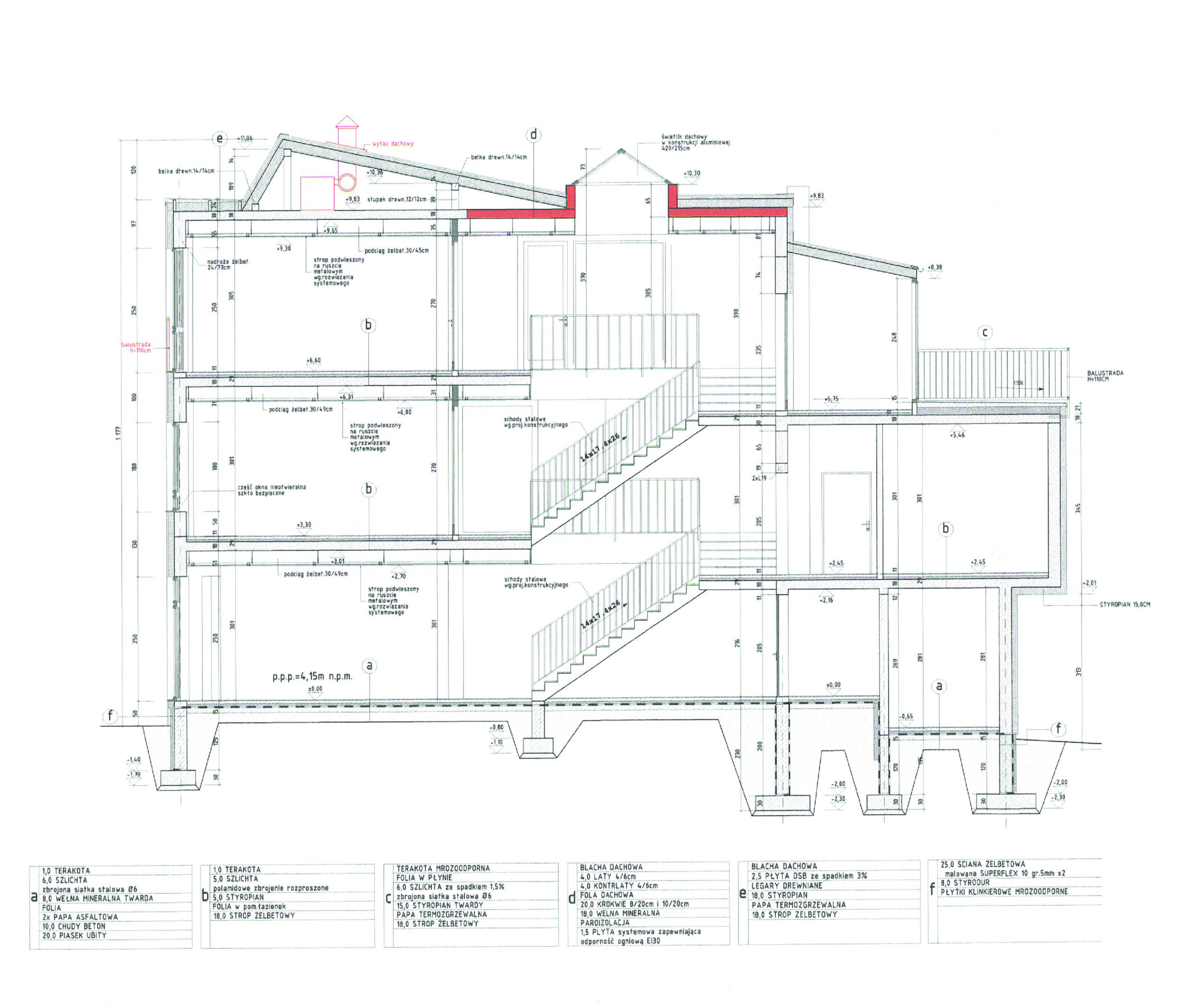
Przekrój budynku
Przekrój budynku ukazującu otwartą architekture klatki schodowej która jest doświetlona naturalnie dzięki świetlikowi dachowemu.
Orde Property
Elewacje
Rzuty budynku z boku, frontu oraz od tyłu
